У свідомості сучасного пересічного львів’янина міцно вкорінилась не зовсім правдива версія історії будівництва й заснування Домініканського собору. Це не дивно, адже більшість відштовхується саме від назви і вірить у польські легенди.

Поколінню людей, що виросли у радянські часи, навіть, якщо не доводилось побувати у Львові, Домініканський костел пам’ятатиме з мюзиклу М. Дунаєвського про мушкетерів з Боярським у головній ролі.

Перед Домініканським костелом знімалася одна з сцен фільму. В часи СРСР велика куля була підвішена під купол колишнього Домініканського костелу і своїм рухом мала засвідчувати атеїстичну точку зору про створення Землі, — це був маятник Фуко, коли тут існував музей “атеїзму”, а до того, як стати музеєм храм слугував складом цементу.

Творцем проекту барокового дива, нового домініканського собору, був комендант кам’янецької фортеці, військовий інженер Ян де Вітте.
Ян де Вітте здобув військову освіту, вивчаючи основи фо

ртифікаційної справи та архітектури. Ймовірно, що для вдосконалення освіти він виїжджав за кордон, але конкретних свідчень про це немає. Відомо тільки, що коли йому виповнилось 17 років, він 26 лютого 1726 р. вступив до артилерійського корпусу в Кам’янці-Подільському. Його військова кар’єра швидко просувалася. Бездоганною службою та професіоналізмом Ян привернув увагу коронного гетьмана Вацлава Жевуського, а потім і самого короля Станіслава Августа Понятовського. Їхня підтримка могла допомогти в його подальшій кар’єрі. Офіцер-інженер Ян де Вітте був представником характерного для Європи XVIII ст. типу будівничих. які окрім військової професії займалися і цивільною архітектурою.

Архітектурна творчість майстра обмежувалась складанням проектів будівель — їх виконання він доручав професійним будівельникам. Де Вітте лише наглядав за перебігом робіт, вносячи певні корективи. Свою діяльність розпочав близько 1736 р., і його першою роботою було планування костелу оо. кармелітів босих в Бердичеві, будівництво якого розпочалось 1737 р. під керівництвом Григорія Тарновського. Побудова бердичівського костелу кармелітів босих принесла де Вітте славу ”великого архітектора Польщі”.
Слава про талановитого архітектора досягнула Львова, що був тоді провідним мистецьким центром на західноукраїнських теренах. Старий костел домініканців Божого Тіла вже давно потребував реконструкції, а її затягування могло призвести до руйнації. Тож не дивно, що керівництво домініканського монастиря зупинило свій вибір на талановитому архітекторові, до чого доклав частку зусиль і брат Яна — о. Томаш, посередник при укладанні угоди. Завдяки фінансовій допомозі Юзефа Потоцького будівництво костелу розпочалося негайно. Юзеф Потоцький, великий гетьман коронний і головний фундатор будівництва, урочисто закладає перший камінь у фундамент майбутнього собору. (Через 2 роки, коли будуть коронувати місцевий образ богоматері, Потоцький знову покаже, що таке смітити грошима, виправивши іконі золоту корону і оздоблення). Грошима також допоміг канівський староста Міколай Базилі. У 1748 р. старий костел частково розібрали, залишивши тільки ті частини, що могли бути використані як опори для нового храму. З часів готичного собору збереглося чорне розп’яття з головного вівтаря та фігурка Богоматері Яцкової з алебастру (XIV ст., зараз зберігається у Кракові). Без сумніву, проект домініканського костелу можна вважати найвищим злетом професійної діяльності Яна де Вітте. Мало хто знає, що взірцем для майстра був віденський костел св. Карла Борромео авторства Погана Бернарда Фішера фон Ерлаха.

З рахунків відомо, що безпосередньо побудовою костелу в 1745-1764-х рр. керував М. Урбанік. Завдяки цьому талановитому будівничому Ян де Вітте зміг реалізувати свої творчі задуми. До того ж, в цей час Б. Меретин працював над планами будівництва собору св. Юра. Тому метою Яна де Вітте було не поступитися в майстерності перед таким суперником, і на львівському ґрунті постали два чудові витвори архітектури XVIII ст.

Орден проповідників – Оrdo praedicatorum (ОР) – було засновано Домініком Ґусманом (1170-1221) 1215 року. Від імені засновника походить знайоміша назва – орден домініканців.
1223 року в Краків урочисто увійшли Ґіацинт (Нyасiпthus, Jacek) Одровонж (1183-1257) з братами-домініканцями.

Так, наприклад теперішні “львовознавці” копіюють одну й ту ж інформацію про те, що начебто 1222 року, чи 1234-го дорогою з Кракова через Судомир і Володимир до Києва св. Ґіацинт заночував на території Львова чи то на Старому ринку, чи на площі Музейній, чи на Новому світі (на горі Яцковій) та й заклав у пущі – дехто пише, що самотужки й поставив, – церковцю й монастирок. Згодом тут постало з благословення святого місто Львів.
У другій версії, героїнею є Констанція, донька угорського короля Бели ІV (1235-1270). В її почті у Львів увійшли брати-проповідники з Угорщини, і вона надала їм свій двір й церковцю св. Івана Хрестителя, що розміщувалися чи то на Старому ринку, чи на площі Музейній, і сталося це чи то 1270 року, чи на зламі 1246-47 років, зразу ж після її весілля чи то з князем Левом Даниловичем (†1301) чи з королем Данилом (†1264).
Вичерпний аналіз джерел та історіографії цих версій зроблено у працях Ольги Козубської. У підсумку дослідниця зазначила, що вони залишаються не підкріпленими документально і є пізньою (XVI–XVII століть) історіографічною «традицією» виразно легендарного характеру.
Руський, дерев’яний Львів згорів майже дотла, а згодом, разом і з ним, готичний: на згарищі першого, польський король Казимир III Wielki (1333-1370) заклав нове кам’яне місто, став фундатором європейського, цивілізованого Львова. Хоча не знаємо ні однієї Казимирової фундації – ні церкви, ні будинку, ні башти, ні стіни – нічого, зате знаємо: спалити – спалив, пограбувати – пограбував…
“Велична ззовні, ще більше ця церква вражає всередині. Загальну увагу привертають чотири велетенські скульптури у вівтарі. Хто знає, той називає. Більшість же відмовчується, і не дивно, бо ж Іван Хреститель стоїть без хреста, апостоли Петро і Павло, відповідно, без ключів і меча, і лише євангеліст Лука зі своїм постійним символом – головою бика. Правда, й він загубив десь на дорогах історії свій пензель, невід’ємний інструмент маляра.
На запитання, чому у вівтарі розміщено саме ці статуї, правильної відповіді годі сподіватися навіть у професійних гідів й екскурсоводів.
Ще наприкінці XIX століття кожний грамотний, бо ж латина була обов’язковим предметом у всіх школах, міг прочитати на вміщеній зліва у вівтарі таблиці: “Venceslaus Hieronimus de Boguslawice Sierakowski archiepiscopus metropolitanus Leopoliensis, qui antiquissimam hanc basilicam titulo ssmi corporis Christi, s. Joannis Baptistae, ac Petri et Pauli apostolorum insignitam […] die 29 Julii 1764 consecravit […]”
Українською мовою це так звучить: “Львівський архієпископ митрополит В’ячеслав Єронім з Богуславич Сіраковський освятив цю найдавнішу й славну базиліку Пресвятого Тіла Христового, Івана Хрестителя, апостолів Петра і Павла 29 липня 1764 року”. На додачу ще й празникували на Тіло Христове, на Йвана, на Петра і Павла.
Але вже тоді ніхто не міг нічого певного сказати про церкву апостолів Петра і Павла, яка передувала Тілу Христовому (хто і коли її будував, де стояла, як виглядала). Навіть отець-домініканець Володислав Жила, автор найґрунтовнішої монографії про монастир і церкву домініканців у Львові. Видану 1923 року, її дотепер сумлінно, щоправда нерідко без посилань переписують сучасні львовознавці.
Жодним словом не пом’янули про церкву Петра і Павла й попередники о. В. Жили, такі визначні дослідники історії монастиря домініканців у Львові, як брати-проповідники Садок Баронч (1814-1892) й Климент Ходикевич (1715-1797), львовознавці Денис Зубрицький (1777-1862) та Йосип Варфоломій Зиморович (1597-1687).
Тільки в отця-домініканця Симона Окольського (1580-1653) в описі монастиря проповідників у Львові знаходимо першу згадку про цю святиню: «Chorum tituli ss. aplor. Petri et Paulі. Corpus vero ssmi corp. Christi», – тобто, пресвітерій освячено в ім’я апостолів Петра і Павла, нава ж – Пресвятого Тіла Христового. Подібно і в о. Томи Піравського (1565-1622). І десь глибоко у підсвідомості зринає здогад – тут колись до церкви Петра і Павла було добудовано Тіло Христове. Саме так і було! Так безапеляційно, наскільки це можливо в історії, стверджує текст, поданий нижче.

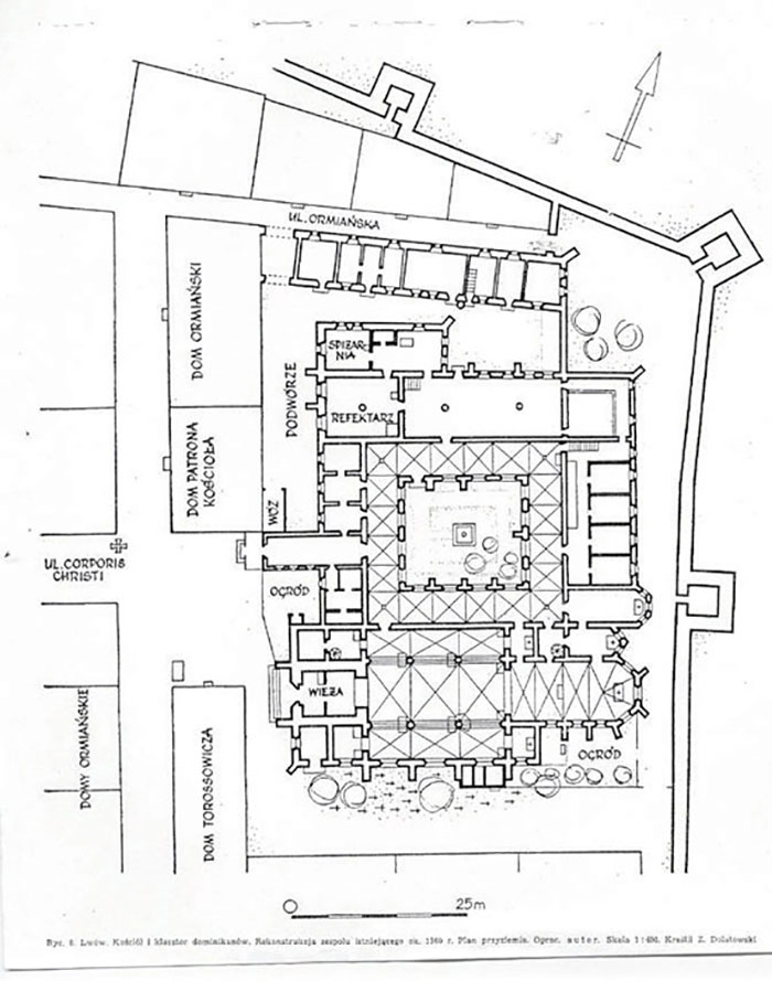
Зліва оригінал. Справа польський переклад. Це пояснення до малюнка, на якому зображено план монастиря домініканців у Львові. Автор малюнка й тексту Мартин Ґруневеґ (1562-після 1618), він же брат В’ячеслав (frater Venceslaus Gedanensis) з Ґданська, архіваріус монастиря проповідників у Львові.
На основі давніх актів він стверджував, що князь разом зі своїм двором (оточенням) надав руську церкву апостолів Петра і Павла братам-проповідникам, щоб вони добудували до неї монастир. З вини нерозторопного настоятеля монастиря братство Тіла Христового, що об’єднувало мулярів і теслів, добудувало до церкви Петра і Павла нову. Стара стала пресвітерієм, де молилися монахи, а в добудові братство утримувало парафію. Від назви братства нова стала називатися Тілом Христовим. На кінець XVI століття вся церква – руська й добудована – стала Тілом Христовим, а первісна посвята в ім’я апостолів Петра і Павла забулася. Так у Ґруневеґа.
План-малюнок Ґруневеґа був дуже детальний – все пронумеровано й підписано.

Оскільки ж його було зроблено на видовженому листку паперу й без належних вимірювань, ще й по-пам’яті, то ані пропорцій, ні масштабу не дотримано. На щастя, структура монастиря, зокрема підвалів й фундаментів збереглася до сьогодні майже без змін, і це дозволило Феліксові Марковському, відомому історику архітектури Львова, на основі малюнка Ґруневеґа й вимірів 1938 року відтворити більш-менш точний план домініканського монастиря у Львові на середину XVI століття.

Отже, ні 1277-го, ні 1331-го, ні 1358 року домініканці у Львові не мали ні монастиря, ні дому, ні стації. Принаймні, саме таку інформацію мали папська курія та орден проповідників і, відповідно, діяли. Тим паче, не могло бути у Львові тоді Тіла Христового. Як відомо, культ Тіла Христового започатковано в середині ХІІІ століття у Льєжі (Бельгія), а остаточно його було встановлено на Соборі у В’єнні (1311-1312). Впроваджено ж у найближчій до Русі краківській єпархії 1320 року, а 1325-го – в ордені домініканців. І лише 1420 року синод у Ґнєзно визначив свято Тіла Христового загальним, зобов’язав святкувати його в усіх церквах Королівства Польщі.

Романовичі – попри вияви релігійної толерантності – активно й послідовно зміцнювали державно-церковну симфонію у стосунках з Царгородською церквою. Вагомим свідченням цього було відкриття 1303 року в Галичі митрополії – у складі кафедр у Володимирі, Перемишлі, Турові, Холмі, Луцьку – Константинопольської церкви.
Ситуація кардинально змінилася, коли папа Григорій XI (1370-1378) буллою “Debitum pastoralis officii” від 13 лютого 1375 року встановив у Галичі митрополію Римської церкви і підпорядкував їй єпархії в Перемишлі, Володимирі, Холмі.
Ще 1375 року на грамотах князя Володислава Опільського першим серед свідків – як первоєрарх Галицької Землі – виступав “Аntоnіus еtrороlitаnus Нalісіеnsіs”, котрого на подання Казимира III було поставлено Константинопольським патріархом 1371 року. А вже в грамоті від 15 березня 1376 року місце руського православного митрополита Антонія зайняв “Мathias electus аrchіеріsсорus Lеmbergеnsis”, котрого було номіновано Володиславом з Опілля на вимогу папи Григорія XI. Після того в Галичині пішли фундації й дотації на митрополію, на парафії, на монастирі Римської церкви.
Не оминула ця хвиля й братів-проповідників. 11 листопада 1377 року князь Володислав Опільський надав домініканцям села Кротошин, Зашків, Кощіїв і чотири двори в селі Мервичах.
1392 року король Володислав Ягайло (1386-1434) пожалував на будову церкви Тіла Христового корчму та митницю на ріці Малій Липі, а 1395 року – село Устковичі. 1397 року Володислав Ягайло вивів усі ці села з-під права руського і польського та надав їм, як милостиню для будови церкви Тіла Христового, маґдебурзьке право. 1402 року Бенко ( Венедикт ) з Жабокрук пожертвував багате село Зарудці на прибудову до Тіла Христового каплиць Пресвятої Богородиці й св. Домініка. Згодом набули брати-проповідники Бірки й частину Ясниськи (1601), частину Рокитного (1602), Давидів (1624), Черепин й Купятин (1628), м. Радивилів (1656), Жовтанці (1810) та ще декілька сіл. Володіли лісами й каменоломнями, вапняними печами й цегельнями. Тож, мали з чого й за що будувати.

Перед тим або водночас – 11 листопада 1377 року – відбулася подія, про яку повідав нам брат В’ячеслав Ґруневеґ, – передача володарем Русі князем Володиславом з Опілля руської церкви апостолів Петра і Павла домініканцям. Грамота ця не збереглася. Точніше, брати-проповідники її не вберегли, але до нас дійшли матеріали судового процесу (1519-1762) між домініканцями і вірменською громадою та містом. Загалом, вони повторюють традицію про початки готичної церкви, зокрема, що пресвітерій став на місці руської церкви Петра і Павла й ще довго зберігав цю посвяту, що наву збудувало брацтво Тіла Христового, і ця назва перейшла потім на всю церкву. Воно й не дивно, бо ж в основу судових документів покладено грамоти зі скрині-архіву, ключі від якої мав брат В’ячеслав.
Разом з тим, матеріали суду містять низку доповнень й цікавинок, що уточнюють та збагачують наші знання про події того часу. Зокрема, там вказано, що “mопаsterіum fundatum апtе аnnuiт Dоmіnі 1297”. На перший погляд, це повністю перекреслює раніше сказане. По суті ж стверджує. 1546 року король Сигізмунд підтвердив фундаційну грамоту князя Володислава Опільського про надання домініканцям сіл Кротошина, Зашкова і Кощіїва. При цьому в королівський привілей було вписано грамоту Опільського від 11 листопада 1377 року. Оскільки ж її, як записано в привілеї, було пошкоджено, то писар помилково замість 1377-го написав 1297 рік. Тож, правильно буде – “монастир фундовано перед 1377 роком Божим”.
Там же є запис, що до монастиря проповідників на цьому місці розміщувалися монахи-василіани (“Іосо S. Ваsilii Моnасhorum…”). О.Порфирій Підручний, дослідник історії Чину Св. Василя Великого (ЧССВ), пише, що наприкінці XI століття – після завоювання норманами візантійських земель у Південній Італії та Сицилії – сотні грецьких православних монастирів було підпорядковано Римській церкві. Оскільки монахи римсько-католицької церкви вже тоді жили за різними статутами і, відповідно, називалися бенедиктинцями, цистерціанцями тощо, то на грецьких поступово поширилась назва «василіани». Коли їх запитували: “За чиїм Статутом живете?”, – вони відповідали, що дотримуються Правил св. Василя Великого.
У XIII столітті поняття «орден василіан» (Ordo S.Ваsіliі) – на означення православних монахів східного обряду – закріпилося в офіційних документах римських пап. У наступних століттях воно стало загальновживаним у такому значенні на просторах Центральної й Східної Європи. Тож, коли стійка й давня – XIV-XIX століть – домініканська традиція, зафіксована в писаннях отців-проповідників, зокрема Садока Баронча, говорить про монастир василіан або монахів-василіан як про попередників братів-проповідників у Львові (“mam za?, gdzie dzi? ko?cio? i klasztor si? nasz znajdyje, by? niegdy? pa?ac ksi?cia Leona, oraz i cerkiew ruska ОО.ВаzуІіапów…”), то йдеться не про василіан греко-католицької церкви, а стверджується існування там у XIII-XIV століттях руських православних монахів, монастиря й церкви апостолів Петра і Павла. ” — пише Микола Хмільовський, завідувач науково-методичного відділу Львівського музею історії релігії.

Окрім вцілілих підземель з похованнями домініканців, де тепер проводять екскурсії, як доповнення до експозицій “Музею Історії Релігії”, є й інші, напівзруйновані давніші ходи, зайти до яких можна з чималої ями на господарському дворику Домініканського монастиря. Стіни і склепіння вузького тунелю, що тягнуться в бік Порохової вежі, за словами дослідників, частково і є стінами першого поверху споруди княжих часів.

У підземеллі монастиря, приблизно в 17 столітті зробили перегородку, розділивши його навпіл. Заввишки тунель щонайбільше метр, тож милуватися унікальною знахідкою можна лише зігнувшись, або навприсядки. Під ногами ж — щонайменше метрове нашарування мулу, отже, колись тут стояла або текла вода. Найбільш імовірно, прохід міг бути затопленим чи розділеним з тактичних,оборонних міркувань, а механізм знищення підземель був спланований ще під час їхнього будівництва чи радше сказати вже доповнення та оновлення братами Домініканцями.
Остап ЛЕЩУК
Джерела:
- http://www.castles.com.ua/dominik.html
- http://artes-almanac.in.ua/ostoron-megapolisu/articles/lylo.html
- http://prostir.museum/ua/post/28491












Добрий день !
На жаль, я не дуже зрозуміла – так ця ВЕЛиЧНА споруда – церков чи костел ?!
стаття написана для фахівців, зрозуміло…і всеж таки…
“руська церква” – то має значити ” русская ” ?!
хто коли що ДОбудовував – тепер намає значення! значення має те, що залишилося на сьогоднішній час…
є таке прислів”я : “мати не та, що народила, а та, що виховала…” – тому , як би вам це НЕ подобалося,
але ЛЬВІВ – це на 97% ПОЛЬСЬКЕ МІСТО !!!
бо зробили його таким розкішним, європейським ,таким бажаним, дивом-дивним – особливо для Східної України – для приїжджих — саме ПОЛЯКИ …
Якщо Ви не знаєте різниці між “руським” і “русскім” то чому беретесь судити про український Львів?Вивчіть історію, особливо основні поняття релігіїі тоді коментуйте…
яка дурнувато-нудна стаття, та ще й створена за допомогою гугл-перекладача!
Дякую, дуже цікаво.
А чого тут портрет ОНУКА архітектора? Аби місце порожнім не було?
І чому ж КОСТЕЛ все ж таки у самій статті називають СОБОРОМ?? Він же собором ніколи не був – навіщо заплутувати людей?..